Design of the P-44T apartment according to all the canons of modern design
The modern design approach is the redevelopment of the old housing stock with the zoning of rooms according to the functional principle. But this is not very convenient to do in panel-type houses, including P-44T apartments. The main difficulty is to obtain permission for redevelopment, since most of the internal partitions are load-bearing walls. Experts have worked out in detail the options for domestic development of the late twentieth century, which are superior to their predecessors in terms of convenience and footage. Linear and undershirts, one-, two- and three-room options, with a loggia or bay window - everything can be modernized, moreover, each layout is different.

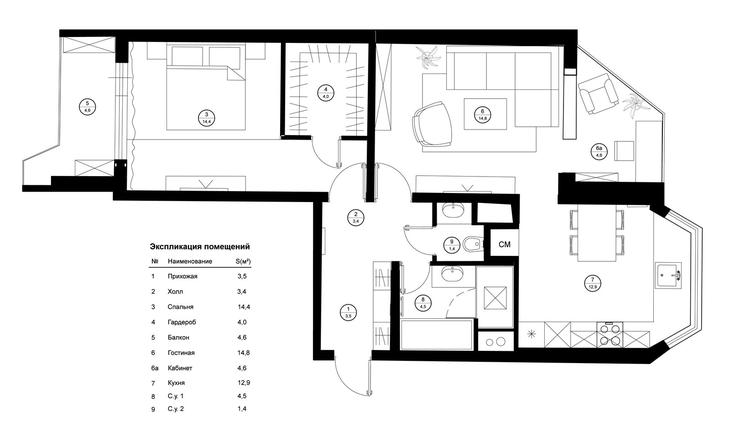
The design of apartments in houses of the P-44T series is largely determined by the redevelopment restrictions, since almost all walls are load-bearing
Content
Architectural features of houses of the P-44T series
The P-44T buildings were developed back in the late 70s, becoming an improved version and development of the P-44 series. The first quarters appeared in new buildings in the capital in 1979 and immediately became the "elite" housing of that time.
The development has taken root, since nothing better has been proposed for almost 4 decades, although much has been invented. According to this project, they are building up to the present, although in the last decade residential areas have been built according to various projects. But all of them inherit in some way the design project P 44T, which was most widely used in the 90s.

Interior updating must be carried out taking into account construction restrictions
The so-called improved-design houses were offered with a different number of rooms. Three-room apartments were most convenient for families with heterosexual children. Typical buildings are high-rise buildings on the 9th, 14th, 17th and 25th floors (from 2 to 8 entrances, occasionally with the letter “G”, “P” and “broken staircase”). An area of at least 80 square meters with isolated rooms - what more could you want for a comfortable stay in a big city ?!
A large area with a spacious loggia or large balcony, a spacious kitchen and an entrance hall are obvious advantages of any layout. A well-thought-out design project of apartment P 44 in a modernized version can successfully compete with apartments built on the basis of the latest developments, as in the photo.

You can equip the entire apartment in a single design or choose a different style for each isolated room
One-room apartments of this series are also much more convenient than “Khrushchev” and “Brezhnevok” - up to 39 m² of total area. The main room is 19 m², the kitchen is 7–9 m². This provided additional sleeping space on a folding sofa, for example, for an adult child. For the thoughtful design of the large room in the P-44T, there are good opportunities, high ceilings up to 2.75 m allow you to mount multi-level structures and lay original floors. A large entrance hall and a loggia are additional advantages of such apartments.
Attention! Today, for redevelopment and reorganization of residential space, they often turn to specialists. On the examples of the arrangement of apartments of the "old" fund, they most often illustrate the interior of apartments in series 44 houses, they are the most suitable.
You can do the design of P 44 one-room, two or three-room apartments on your own using successful projects with photos as an example.
Advantages of three-room apartments 44 series
Many-room options were developed for families with children, and the state allocated them for those with 2-3 children or for the prospect of their birth. Project advantages:
- isolated rooms with a separate entrance;
- spacious kitchen, which is easily divided into a working and dining area;
- ventilation ducts and inspection hatches can be hidden with decor or furniture;
- large loggias after glazing and warming become an additional room, which is convenient to use all year round (greenhouse, sports corner, dressing room, PC gaming area or workshop);
- spacious bathrooms (sometimes 2) can be transformed at your discretion, redistributing a place for a shower, washing unit and wash basins.

Home office in a heated loggia
Options for transforming the interior
Three-room apartments differ in bearing partitions that cannot be demolished.
Even if you do not make a radical redevelopment, there are several successful solutions to make the design of the P-44 series apartment more comfortable for living:
| 1. | Combining the kitchen with the living room | Do not tear down the wall, but do with a large arched opening with a bar counter halfway |
| 2. | Add kitchen area to the loggia | Remove the door and window, make full insulation and take out the dining table (chairs with a cupboard) |
| 3. | Add sq.m bathroom | Cut the free space of the corridors and “increase” the space for the car in the bathroom |
| 4. | Living rooms lengthen | Take away from the corridor sq.m for bedrooms to equip a wardrobe or dressing room |
The bay window is a good place to experiment in interior design of the P 44 apartment, where there is a lot of natural light. There may be a desk where students will learn lessons, or a comfortable sofa for reading or working on a laptop.

The interior of the living room with a bay window can be arranged in different ways.
It is better to equip the rooms in the style that will suit all family members.
Living room
The designers propose to make the living room light, “tasty” shades, for example, cream background and chocolate linear contrasts to exclude black color. In such an interior design, the P 44 will look good classic light wood dining set or upholstered furniture with luxurious upholstery.

The small living room can be enlarged by removing the partition between the room and the corridor
Bedroom
The conjugal bedroom can be decorated in the spirit of romanticism. The choice of color depends on personal preferences, but a light lilac or pale blue color usually suits both spouses. The choice of the benefit of modern style is emphasized by the soaring ceilings of bulk floors.

Cabinets with mirrored doors visually expand the space of a small bedroom

Dressing table can be placed near the window.
Children
Children's room - a second bedroom, the design of rooms P 44 T makes it possible to "walk around" with decorations and zoning. If there are two children, a bunk bed and modular cabinet furniture will save space for the play area. Do not forget about the place for a working corner with numerous shelves and racks for toys and small items.

If the room is designed for two children, there should be twice as many in it

A desk is better placed near the window
Study
If the children have already grown up and left a cozy family "nest", an extra room can be arranged based on the lifestyle of the parents. This can be a study with a library or a separate personal space of one of the spouses, for example, a workshop for the wife of a needlewoman. A large dressing room with a fitting room and a sitting place for telephone conversations is a modern solution when there are a lot of things. A creative workshop or room to play music or paint in isolation, is suitable for creative people.

For the design of your office, the classic style is great

A good choice would be solid furniture made from natural materials
Kitchen
The kitchen can be classic, retro or country style, where a pleasant nostalgic atmosphere contributes to the cooking process and refreshments. But most experts offer the modern design of P 44T apartments, for example, high-tech or loft. Use the murals or decor for the illusion of expanding space to add originality.

Modern style kitchen with light transparent curtains

The size of the dining table depends on the number of eaters and the size of the kitchen
Hallway
The entrance hall is spacious enough to equip it with compact upholstered furniture, where it is pleasant to “land” when you change your shoes. Do not clutter up a few squares at the front door and overload the perception with complex decor.

Light colors visually expand the space of the hallway
Minimalism in any version (Scandinavian, Japanese or classic) is an excellent solution for the design of the P44T. Pay more attention to spectacular lighting, built-in furniture, quality finishes and mirrored walls. This will expand the space of the hallway and other rooms, modernizing the design of the apartment. Other examples are in our gallery.
Video review of a three-room apartment after repair
Photo: P-44T series apartment design
Lonely odnushka
Provencal studio apartment
Scandinavian couple

The redevelopment was minimal - one loggia was attached to the living room and organized a study in it








































































